

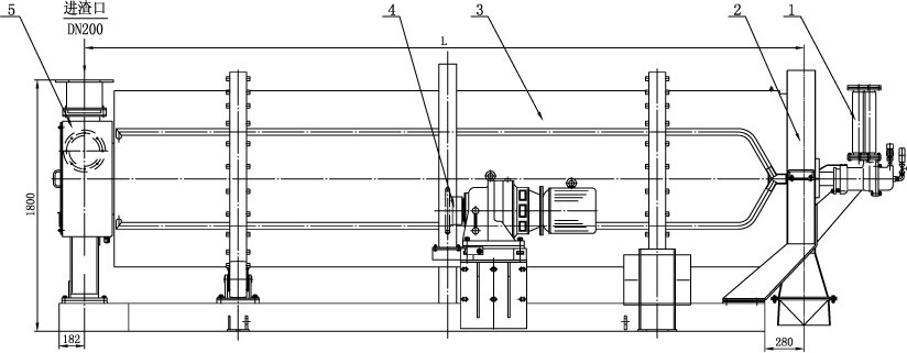
Roller slag cooler consists of multi-tube heat transfer roller, slag inlet device, slag outlet device, rotating mechanism, cooling water system and electric control device (Figure 1).

1 cooling water system 2 slag discharging device 3 drum 4 rotating mechanism 5 slag feeding device
Fig. 1 Appearance of Left Slag Cooler
Used for cooling hot slag (about 1050℃) of fluidized bed and boiling bed boilers, the cooled slag temperature is generally not more than 150℃, and the highest temperature should not exceed 220℃.

According to the drum diameter, the slag cooler has series specifications of GTL8C, GTL10C, GTL12C, GTL15C, GTL18C and GTL20C. The length of slag cooler is usually related to its output, slag tapping temperature and limited import and export distance. Fig. 1 the specific model of slag cooler is: GTL12C-n×L left (or right). Where n is the output (t/h), L is the distance between the entrance and exit (mm), and left means left type and right means right type.
RELATED PRODUCTS
No search results found!